Generador de Preus. Espanya
Preus descompostos
Fabricants
Seguretat i salut
Suggeriments
Open BIM Systems
Emplaçament i caracterÃstiques
Accedir
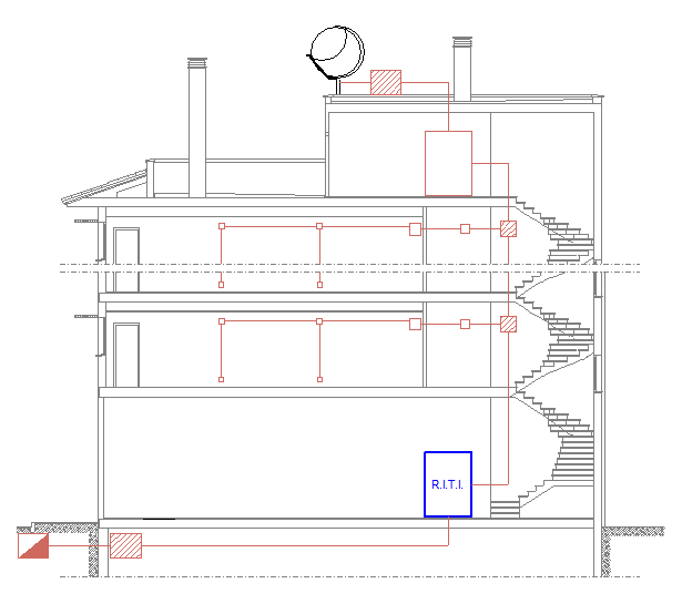
Secció
Esperi, per favor
Executant procés...