Generador de Preus. Rehabilitació. Espanya
Preus descompostos
Fabricants
Seguretat i salut
Suggeriments
Open BIM Systems
Emplaçament i caracterÃstiques
Accedir
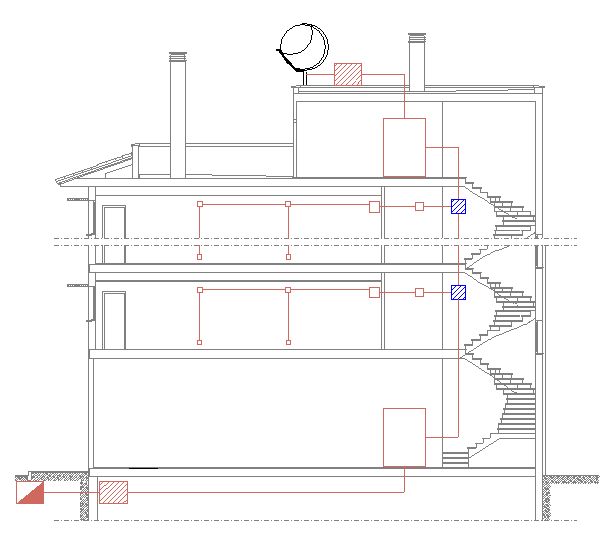
Esquema
Esperi, per favor
Executant procés...