Generador de Preus. Rehabilitació. Espanya
Tipologies d'obra
Fabricants
Seguretat i salut
Suggeriments
Open BIM Systems
Emplaçament i caracterÃstiques
Accedir
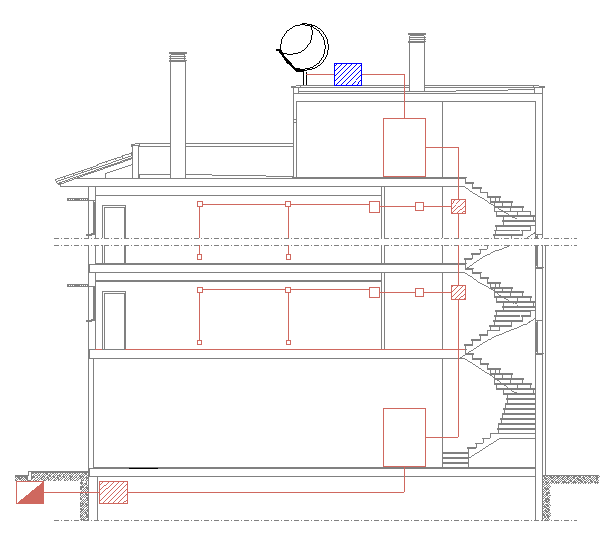
Secció
Esperi, per favor
Executant procés...